Constant RCS-81H Type F

Constant Springs>Part #RCS-81H Type F                                                          Download PDFDownload #RCS-81H Type F Data Sheet

Part #RCS-81H Type F
Constant Spring 

Part RCS-81H Type F Constant Spring Support   

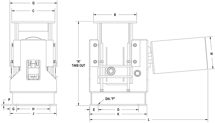
The RCS-81H “TYPE F UPTHRUST” is specifically designed to support pipes or equipment from below and is supplied with a base to anchor it to the floor. Available in most types of finishes.

Hanger Sizes

Total Travel TT

A

B

C

D

E

F

G

H

J

K

L

M

N

P

Q

10 - 18

2 - 6

See Take Out

10  7/8

11  7/8

9

2  1/2

3/4

2

8

12

14

22  7/16

8  1/4

5

1/2

13  7/8

19 - 34

2 - 8

13  3/4

13  3/4

13

2  1/8

3/4

2

10

14

17  1/4

31  5/8

12  1/2

8

5/8

16  3/8

35 - 49

2.5 - 10

17  7/8

16  1/4

17

2

7/8

2

13

17

21

38  1/4

13  5/8

8

3/4

19  3/4

50 - 63

3 - 10

21  5/8

19  1/4

16  1/2

4 5/8

7/8

3  5/8

11  3/4

19

25  3/4

52

17  3/8

10

3/4

23  1/4

Take-Out Factor "A"

T.T.

Sizes

10 - 18

19 - 34

35 - 49

50 - 63

2

16 1/8

23  1/8

-

-

2.5

25  3/4

-

3

28  1/2

3.5

4

19 7/8

4.5

5

5.5

27  1/2

6

6.5

-

31  5/8

7

-

34

7.5

-

8

-

8.5

-

-

9

-

-

9.5

-

-

10

-

-

*For down Travel: Take-Out = “A” + (1/2) Actual Travel

       

For Up Travel: Take-Out = “A” - (1/2) Actual Travel

       

Request a Quote!