Constant Springs>Part #RCS-80V Type G
Download #RCS-80V Type G Data Sheet
Part #RCS-80V Type G
Constant Spring
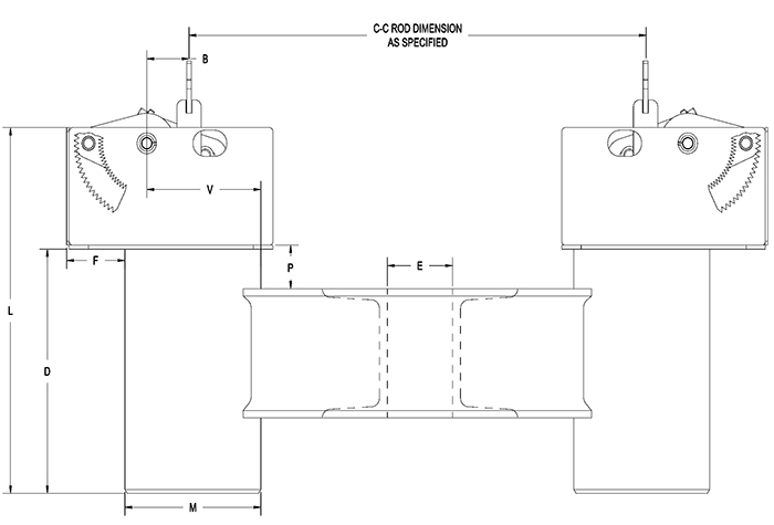
The RCS-80V “TYPE G” is manufactured using opposing constants and a pair of channels welded back to back, to form a trapeze assembly. This RILCO system is designed for use when a pipe is not to be centered on the constant support so that one spring of the trapeze carries a heavier load than the other. Available in most types of finishes.
|
Hanger Sizes |
L |
D |
E |
F |
M |
N |
P |
Q |
V |
Y |
Channel |
C-C |
Total Travel (in.) |
Factors |
A |
||||
|
10-18 |
18 7/8 |
8 7/8 |
1 |
2 |
8 5/8 |
6 7/8 |
2 9/16 |
3 1/2 |
5 13/16 |
4 |
4@ 5.4 |
30 |
≤ 5 |
11 11/16 |
3/4 |
||||
|
>5 1/2 |
14 |
||||||||||||||||||
|
19-34 |
28 1/2 |
16 |
1 1/4 |
2 1/8 |
12 3/4 |
8 9/16 |
3 9/16 |
4 |
9 |
6 1/8 |
6 @ 10.5 |
42 |
≤ 5 |
16 13/16 |
1 1/4 |
||||
|
>5 1/2 |
18 3/4 |
||||||||||||||||||
|
35-49 |
32 3/4 |
18 1/4 |
1 1/2 |
4 3/4 |
14 |
9 13/16 |
3 7/16 |
5 1/2 |
10 3/4 |
8 |
10 @ 15.3 |
48 |
≤ 6 |
19 1/4 |
1 3/4 |
||||
|
>6 1/2 |
23 7/8 |
||||||||||||||||||
|
50-63 |
46 7/8 |
28 1/8 |
2 1/8 |
8 5/16 |
18 |
11 1/4 |
4 |
6 1/2 |
14 3/4 |
10 15/16 |
12 @ 20.7 |
48 |
≤ 11 |
24 5/8 |
2 1/4 |
||||
|
>11 1/2 |
30 |
||||||||||||||||||
|
64-110 |
Not Available |
||||||||||||||||||
|
A-Rod Selection Chart |
|||||||||||||||||||
|
Loads (lbs) |
0 |
801 |
1501 |
2541 |
4001 |
6101 |
9401 |
13401 |
18301 |
||||||||||
|
A Rod Size |
1/2 |
5/8 |
3/4 |
1 |
1 1/4 |
1 1/2 |
1 3/4 |
2 |
2 1/4 |
||||||||||
