Constant Springs>Part #RCS-80V Type E
Download #RCS-80V Type E Data Sheet
Part #RCS-80V Type E
Constant Spring
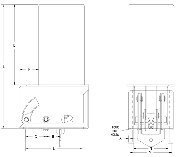
The RCS-80V “TYPE E” is the same as the RCS 80-V “TYPE D” except the “TYPE E” is designed with two(2) brackets that comprise its frame thereby allowing it to rest on the top flange of the structural member. Available in most types of finishes.
|
Hanger Sizes |
L |
C |
D |
F |
|
I |
L |
M |
X |
Y |
N |
Q |
Angle Size |
Total Travel (in.) |
Factors |
A |
|||||||
|
10-18 |
18 7/8 |
1 1/2 |
8 7/8 |
2 |
- |
4 5/16 |
8 5/8 |
5/8 |
8 15/16 |
6 7/16 |
1 3/8 |
1.5 x 1.5 x 1/4 |
≤ 5 |
1 7/16 |
3/4 |
||||||||
|
>5 1/2 |
3 3/4 |
||||||||||||||||||||||
|
19-34 |
28 1/2 |
13/16 |
16 |
2 1/8 |
- |
6 11/16 |
12 3/4 |
5/8 |
11 3/16 |
8 9/16 |
1 5/8 |
1.5 x 1.5 x 1/4 |
≤ 5 |
2 13/16 |
1 1/4 |
||||||||
|
>5 1/2 |
4 15/16 |
||||||||||||||||||||||
|
35-49 |
32 3/4 |
1 7/8 |
18 1/4 |
4 3/4 |
- |
8 5/16 |
14 |
13/16 |
13 5/16 |
9 13/16 |
2 1/2 |
2 x 2 x 3/8 |
≤ 6 |
2 1/2 |
1 3/4 |
||||||||
|
>6 1/2 |
7 1/8 |
||||||||||||||||||||||
|
50-63 |
46 7/8 |
3 3/4 |
28 1/8 |
8 5/16 |
- |
12 13/16 |
18 |
1 5/16 |
14 11/16 |
11 1/4 |
3 |
3 x 3 x 3/8 |
≤ 11 |
1 5/8 |
2 1/4 |
||||||||
|
>11 1/2 |
7 |
||||||||||||||||||||||
|
64-74 |
62 |
3/8 |
35 3/4 |
3/8 |
25 3/8 |
15 3/4 |
22 3/16 |
1 9/16 |
14 15/16 |
11 |
3 |
3.5 x 3.5 x 1/2 |
≤10 1/2 |
9 1/8 |
2 3/4 |
||||||||
|
> 11 |
9 1/4 |
||||||||||||||||||||||
|
75-83 |
62 1/2 |
5 1/4 |
35 3/4 |
1 1/2 |
25 3/8 |
25 5/8 |
27 3/16 |
1 3/4 |
15 1/2 |
11 |
3 |
4 x 4 x 3/8 |
≤10 1/2 |
8 3/4 |
3 1/4 |
||||||||
|
> 11 |
8 7/8 |
||||||||||||||||||||||
|
84-110 |
Not Available |
||||||||||||||||||||||
|
|
|||||||||||||||||||||||
|
A-Rod Selection Chart |
|||||||||||||||||||||||
|
Loads (lbs) |
0 |
801 |
1501 |
2541 |
4001 |
6101 |
9401 |
13401 |
18301 |
24701 |
31001 |
39001 |
48001 |
||||||||||
|
A Rod Size |
1/2 |
5/8 |
3/4 |
1 |
1 1/4 |
1 1/2 |
1 3/4 |
2 |
2 1/4 |
2 1/2 |
2 3/4 |
3 |
3 1/4 |
||||||||||
|
* 3 3/4” is furnished with 8 UN series thread. |
|||||||||||||||||||||||
