Constant Springs>Part #RCS-80V Type D
Download #RCS-80V Type D Data Sheet
Part #RCS-80V Type D
Constant Spring
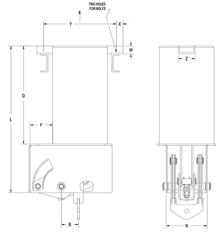
The RCS-80V “TYPE D” is designed to lay on top of the beams or structural steel rather than attaching to the structures like the other “Constant Supports”. Available in most types of finishes.
|
Hanger Sizes |
L |
D |
F |
|
Q |
P |
W |
X |
Y |
Z |
Bracket Hole Dia |
Total Travel (in.) |
Factors |
A (max.) |
|
|
10-18 |
18 7/8 |
8 7/8 |
2 |
1 3/8 |
4 15/16 |
2 3/8 |
1 1/2 |
10 3/4 |
3 |
3/4 |
≤ 5 |
15 1/2 |
3/4 |
||
|
>5 1/2 |
17 3/16 |
||||||||||||||
|
19-34 |
28 1/2 |
16 |
2 1/8 |
1 5/8 |
12 1/2 |
2 3/8 |
1 1/2 |
14 7/8 |
3 |
7/8 |
≤ 5 |
26 11/16 |
1 1/4 |
||
|
>5 1/2 |
28 13/16 |
||||||||||||||
|
35-49 |
32 3/4 |
18 1/4 |
4 3/4 |
2 1/2 |
13 1/4 |
2 5/8 |
2 |
16 3/4 |
4 |
1 1/8 |
≤ 6 |
31 1/4 |
1 3/4 |
||
|
>6 1/2 |
35 7/8 |
||||||||||||||
|
50-63 |
46 7/8 |
28 1/8 |
8 5/16 |
3 |
24 1/2 |
2 7/8 |
3 |
21 |
6 |
1 3/8 |
≤ 11 |
45 9/16 |
2 1/4 |
||
|
>11 1/2 |
50 7/8 |
||||||||||||||
|
64-74 |
Available Fig. 81-H only. |
||||||||||||||
|
84-110 |
Not Available |
||||||||||||||
|
A-rod Selection Chart |
|||||||||||||||
|
Loads (lbs) |
0 |
801 |
2541 |
4001 |
6001 |
9401 |
13401 |
18301 |
|||||||
|
A-Rod Size |
1/2 |
5/8 |
1 |
1 1/4 |
1 1/2 |
1 3/4 |
2 |
2 1/4 |
|||||||
